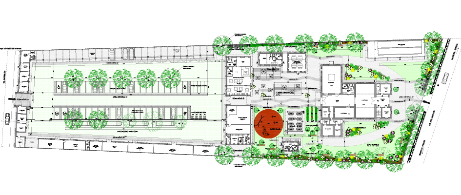
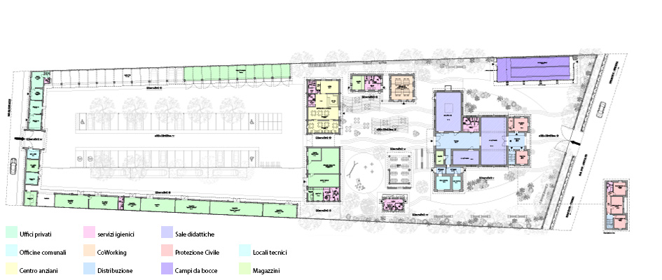
L’intervento prevede la rifunzionalizzazione dell’interno quartiere denominato Ex Macello con interventi architettonici, strutturali, impiantistici e di installazione di aree giochi e aree verdi nell’intero lotto di 7.700 mq circa. Le funzioni che si instaureranno saranno magazzini, centro ricreativo anziani, co-working, aule didattiche, servizi igienici, campi da bocce e uffici della Protezione Civile.


